Discover the intelligent design and
flexible structure of
Roominos Floor Plans
created for investors and modern living.
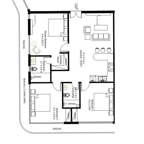
Each 10-floor layout features six 100 sqm apartments, developed with balance between light, privacy, and function. Every flat can be merged into a 200 sqm luxury residence or combined vertically as a duplex, offering freedom to adapt space according to investor vision and buyer demand.
The design focuses on efficiency, comfort, and profitability — reflecting Roominos’ commitment to smart architecture. From structural planning to future BMS integration, every element serves a purpose: to create sustainable value, elegant living, and strong returns for all project partners.



Designed for Modern Living
Each floor of the 10-story complex is planned with precision — six 100 sqm apartments designed for harmony between light, space, and privacy. The layout allows flexible use: two flats can merge into a 200 sqm residence or connect across floors as a duplex, ensuring adaptability for various lifestyles and investment strategies. The result is a building that feels dynamic, elegant, and purpose-built.
“Architecture becomes valuable when design and investment grow together.”
Roominos Design TeamArchitectural Concept Studio
The design concept integrates functionality with modern Mediterranean aesthetics. Every decision — from core placement to balcony orientation — optimizes energy, light, and living comfort. The overall plan reflects efficiency without compromise, providing lasting value for both residents and investors.
Designing with Purpose
Every architectural element in The Luxury Residence in Antalya serves a clear purpose — to enhance life and deliver value. The combination of open layouts, natural ventilation, and well-balanced proportions transforms residential space into a form of intelligent design. Beauty, here, comes from structure, not decoration.
“Designing is not about filling space — it’s about giving it meaning and function.”
Roominos Architectural TeamAntalya Project Division
By blending precise geometry with comfort-driven planning, Roominos creates homes that adapt easily to investor goals and resident needs. Each floor plan balances innovation and simplicity — a seamless fusion of structure, light, and purpose for the next generation of urban living.




Designing with Purpose
Every detail in each apartment has been designed with intent — from the placement of walls to the direction of sunlight. At Roominos, architecture is not just about appearance but about how space serves life. Precision, proportion, and balance define every 100 sqm flat, creating an atmosphere that combines comfort, function, and long-term value.
By applying clear design logic and future-ready concepts, we turn standard floor plans into adaptable living spaces. Whether single, merged, or duplex, every layout reflects efficiency and elegance — blending light, structure, and practicality into a seamless experience that connects living and investment goals.